Hoppa direkt till innehåll
Borta Bra Hemma Bäst
4A78D88B-0BF2-429A-A7EE-C4116BC326E8_1_201_a
Jonas Eklundh
Jag är en trevlig prick som bygger hemsidor. Men jag bygger även verandor och möbler och gud v...
weblog

Weblog

utilities
Köksrenovering
Den här bloggen är kopplad till ett projekt
Nästa: Rivit köket!Gå till projektet Gå till projektet
06
maj
2015

Köksplaner

00:00 4332, Inga kommentarer
Vi har ju flyttat till ett nytt hus som vi tycker väldigt mycket om. Det matchar så väldigt många parametrar som vi sökte efter i ett hus och nu har vi bott här i ett par månader.
Köket var litet och slitet. Bild från Hemnet och förra ägaren
Stort badrum är ju trevligt så klart, men det behöver inte vara så här stort, och den där "spa-duschen" är inte så himla fantastisk som den ser ut
Det var bara en enda sak med huset som kändes som att det behövdes en förbättring, och det var köket. Det var gammalt och slitet, samt väldigt litet. Dock så är köket vägg i vägg med ett onödigt stort badrum, och eftersom vi har en till dusch på övervåningen och ännu en på nedervåningen kändes det som att vi kan offra det här badrummet till köksgudarna.
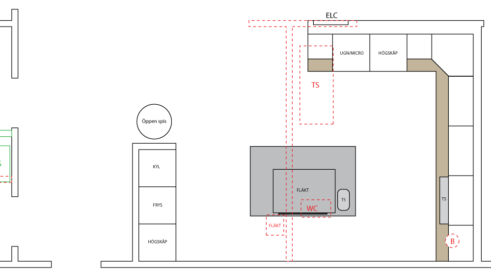
Så planen är att ta bort det stora badrummet helt och sedan slå ut väggen mellan dem och bygga ett riktigt stort kök med köks-ö och allt. Här är en liten ritning som visar på ett ungefär hur vi tänkt oss.
Klicka för att förstora
Så de röda linjerna är den gamla väggen och lite av den gamla inredningen som ska bort, så blir det ett stort kök. Måtten är inte exakta men jag har försökt se till att avståndet runt köks-ön är 120 cm runtom utom mot ytterväggen. Då finns det plats för att öppna kylskåp, ugnsluckor, diskmaskiner och ändå röra sig i rummet.