Vi har ju flyttat till ett nytt hus som vi tycker väldigt mycket om. Det matchar så väldigt många parametrar som vi sökte efter i ett hus och nu har vi bott här i ett par månader.


Det var bara en enda sak med huset som kändes som att det behövdes en förbättring, och det var köket. Det var gammalt och slitet, samt väldigt litet. Dock så är köket vägg i vägg med ett onödigt stort badrum, och eftersom vi har en till dusch på övervåningen och ännu en på nedervåningen kändes det som att vi kan offra det här badrummet till köksgudarna.
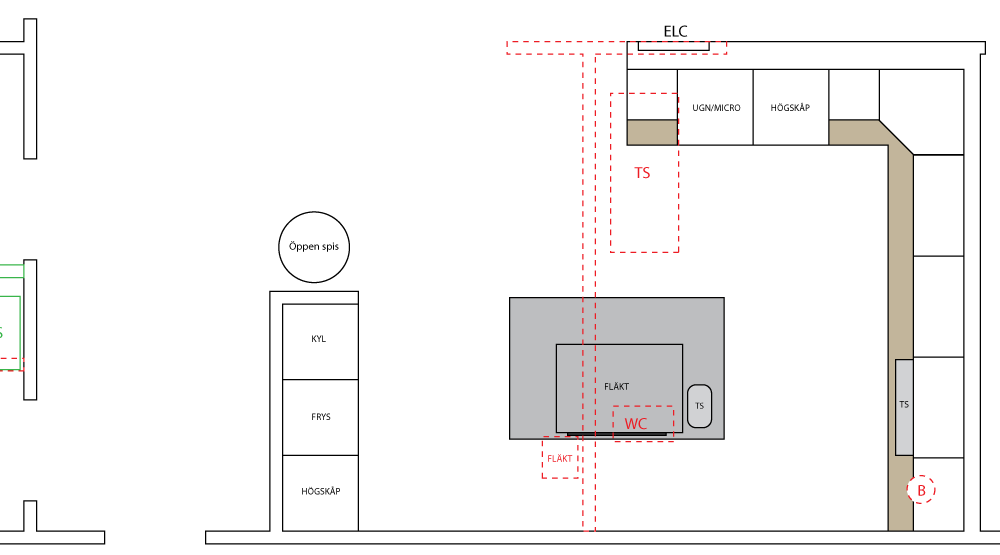
Så planen är att ta bort det stora badrummet helt och sedan slå ut väggen mellan dem och bygga ett riktigt stort kök med köks-ö och allt. Här är en liten ritning som visar på ett ungefär hur vi tänkt oss.
Så de röda linjerna är den gamla väggen och lite av den gamla inredningen som ska bort, så blir det ett stort kök. Måtten är inte exakta men jag har försökt se till att avståndet runt köks-ön är 120 cm runtom utom mot ytterväggen. Då finns det plats för att öppna kylskåp, ugnsluckor, diskmaskiner och ändå röra sig i rummet.

