
Jag har läst någonstans att ens tredje boende som ett par ska vara det som man blir kvar i, och det betyder att nästa gång vi flyttar så gäller det. Vi hänger en hel del på Hemnet och spanar in hus runt omkring i trakten, men ofta är det något som inte stämmer, eller så ser man på bilderna att det är något som måste renoveras eller bytas ut.
Och en gemensam dröm har alltid varit att bygga ett hus efter ens egna behov och önskemål. Och nu har dessa idéer börjat att ta form. Vi har båda en stadig inkomst och hoppas att vi kommer kunna få ett lånelöfte som är tillräckligt stort för att bygga ett hus, men vi har alltså inte ens snackat med banken.
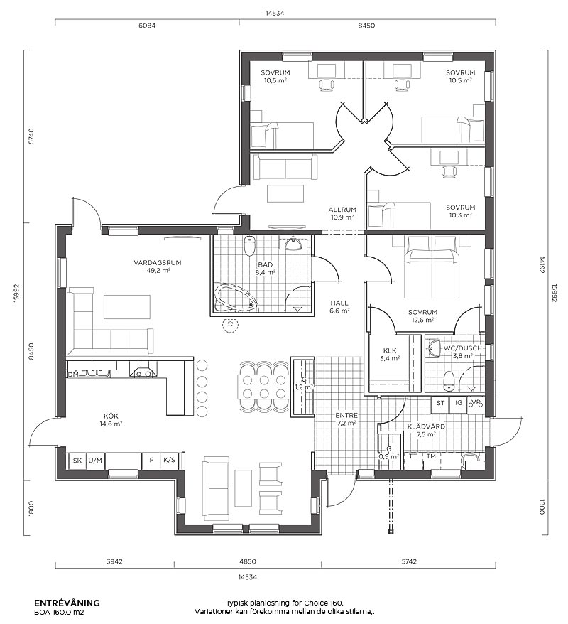
Vi har dock börjat beställa en massa huskataloger från en massa hustillverkare. Dom innehåller ju inga priser så man får gissa lite utifrån rapporter från till exempel forumet på www.byggahus.se. Men innan man kan kolla på hustyper så bör man ju vara rätt så överens om vad för sorts hus det är man är ute efter, så här ska jag försöka sammanställa det.
Viktigt
- 1-plans hus
- Typisk "landet"-stil på huset
- Vardagsrum i anslutning till kök
- Vardagsrum är lämpligt för bioduk och projektor
- Bergvärme och golvvärme (förberett för eller med A/C)
- Barnens rum är i ena änden av huset, vårt i andra
- Klädkammare
- Inga korridorer
- Stort kök
Önskemål
- Öppen spis
- Garage i anslutning till huset, så man kan gå mellan utan att gå ut
- Dubbelgarage
- Möjlighet att duka långbord
- Ryggåstak (alltså öppet upp i taket i t ex vardagsrummet)
- Tvättrum i anslutning till köket

Vi har bokat möte på banken och ska snacka lite om vad för typ av pengar vi kan få låna, och vad gäller tomt är ju det nästa steg. Det är en vi är lite sugna på men vi måste snacka med ägaren först, fast inte förrän vi har pratat med banken.
Sedan antar jag att man bestämmer sig för en hustyp och kontaktar deras säljare och tar ett möte och snackar om offert, detaljer, ändringar i planlösning och en massa annat. Men en sak i taget, antar jag. Vi får se hur det går, helt enkelt!
